Aquí puede configurar su sistema de cadenas portacables. Todos los datos introducidos y todas las modificaciones se transfieren a la lista de piezas que se encuentra al final de la página.
Serie E4.56AG - cadena portacables con sistema de apertura a presión por los dos lados y travesaños en todos los eslabones
1. Carrera recta debido al diseño de eslabones interiores/exteriores
2. Carreras de poco ruido debido al freno integrado en las paradas radiales
3. El diseño de lengüeta y ranura asegura rigidez muy alta y capacidad de carga en la presencia de fuerzas de cizalla
4. 15% más de fuerza de tracción, mejor longitud autosoportante debido al sistema mejorado de paradas y paradas verticales radiales
5. Nuevo travesaño destapable disponible para fijación/desmontaje más rápido 450.X.
Q
6. Amplio rango de Productos para distribución interior -
nuevo sistema de Posibilidad de distribución interior para tendido de cables más rápidoT563(A)
7. NC versión "sin inclinación" posible debido al fácil giro del eslabón exterior sin revisión
8. Travesaños para cadenas portacables puede ser desmontado de los dos lados
9. Tapas del tubo portacables extraíbles
10.Travesaños anchos de plástico que no dañan los cables
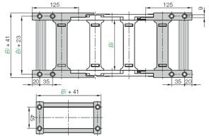
Anchuras interiores disponibles Bi: 50 a 600 mm
Radios de curvatura disponibles R: 135 a 500 mm
Paso: 91 mm por eslabón = 11 eslabones/m